斎藤貸事務所
斎藤貸事務所 賃貸テナント・オフィス 税込93,500円/月
| 住所 | 交通 | 賃料 共益費 |
敷金 礼金 |
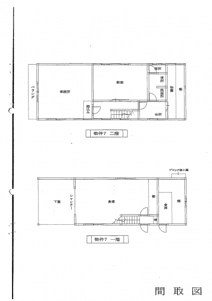
間取り 面積 |
築年数 |
|---|---|---|---|---|---|
| 福島市野田町4丁目10-48 | 最寄駅: 分 最寄バス停: 野田保育所 2分 |
税込93,500円 円 |
170,000円/2ヶ月 無し |
134.12m2 |
52年 |
物件詳細
| 物件番号 | |
|---|---|
| 住所 | 福島市野田町4丁目10-48 |
| 交通 | 最寄駅: 分 最寄バス停:野田保育所 2分 |
| 賃料 | 税込93,500円 |
| 共益費 | 円 |
| 敷金 | 170,000円/2ヶ月 |
| 礼金 | 無し |
| 間取り詳細 | |
| 面積 | 134.12m2 |
| 築年数 | 52年 |
| 構造 | |
| 設備 |
|
| 駐車場 | 有り/ |
| 備考 | ・火災保険料 加入要 ¥24,000(2年) |













































